Event Space
Tables set in banquet hall
Tables set in banquet hall

Event Space

Event Space

Situated on the picturesque campus of the College of the Ozarks, The Keeter Center is just minutes away from downtown Branson Landing. Under the expanse of 95,000 square feet, one can find everything from elegant banquet spaces to state-of-the-art conference rooms.

Event Spaces

Our venue offers a distraction-free setting, paired with world class catering services. Come and experience firsthand why The Keeter Center is ranked one of the top event centers in the nation for unparalleled service and guest satisfaction. Impeccable service and attention to detail are the cornerstones of our operation, making The Keeter Center the perfect venue for your next corporate event, training seminar, luncheon, or private reception.

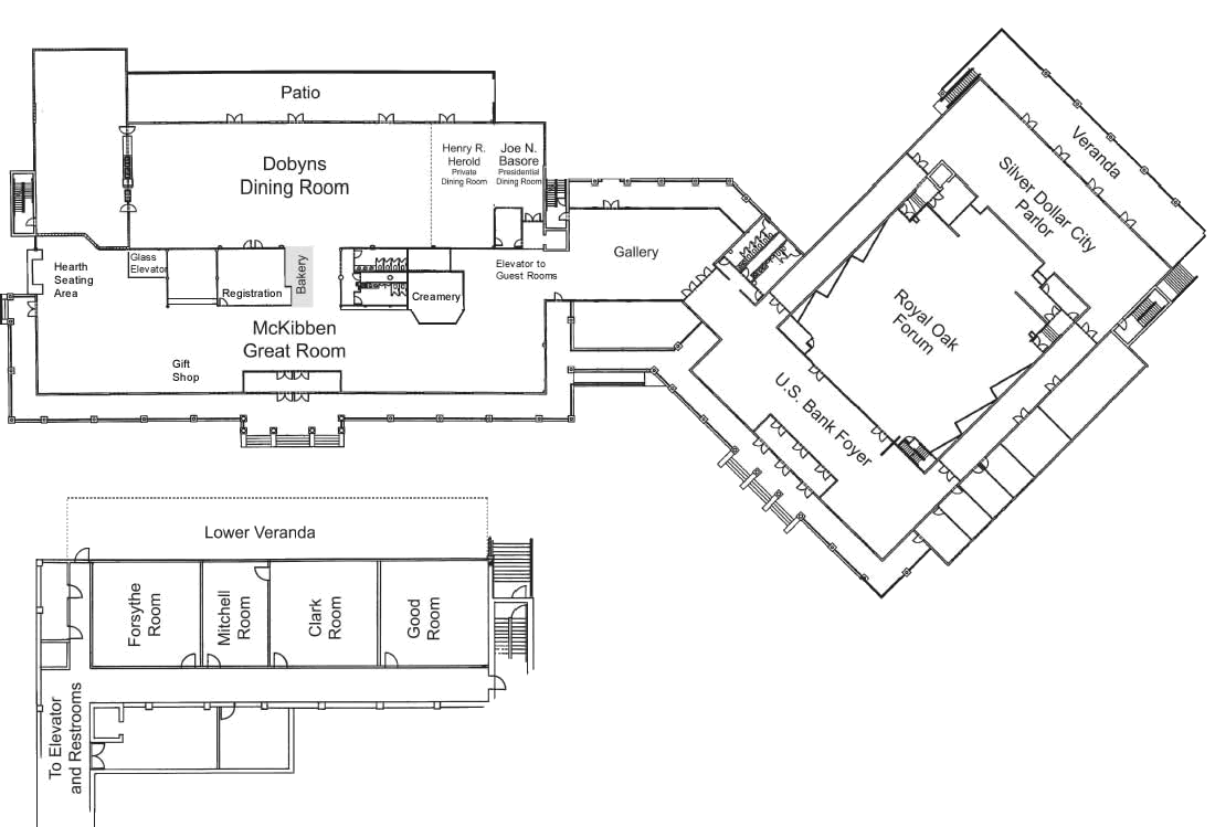
Room Size and Capacities

If you're looking for a meeting room rental in the Branson, MO area, we invite you to view the dimensions and capacity of each of our available rooms below. For reservations or additional information, please call (417) 239-1900

Sq Ft Banquet Reception Theater Classroom
Royal Oak Forum -
60x80x20 (4,900)
N/A N/A 350 350
Silver Dollar City Parlor -
118x34x17 (4,012)
200 350 300 120
Silver Dollar City Veranda -
109.1x20.4x13 (2,225.64)
150 250 N/A N/A
U.S. Bank Foyer -
129.9x36.3x17 (4,715.37)
N/A 400 N/A N/A
Forsythe Room -
26x25x8 (650)
30 50 35 27
Clark Room -
26x25x8 (650)
30 50 35 27
Good Room -
26x25x8 (650)
30 50 35 27

 

A layout map of the Keeter Center.

The Keeter Center

Are you ready to plan for your event?